ГОСТ 9797-85 Рельсы контррельсовые РК50. Размеры

Категории ГОСТ 9797-85 по ОКС:
Статус документа:
утратил силу в рф, введён в действие 01.07.1985
Название на английском языке:
Rails for RK50 check rails. Dimensions
Дата актуализации информации по стандарту:
31.07.2025, в 10:10 (менее 3 месяцев назад)
Вид стандарта:
Стандарты на продукцию (услуги)
Дата начала действия ГОСТа:
1985-07-01
Срок действия ограничен:
01.01.2014
Дата последнего издания документа:
1985-01-01
Коды документа ГОСТ 9797-85:
Код ОКП:
092100
Код КГС:
В42
Код ОКСТУ:
0921
Число страниц:
8
Назначение ГОСТ 9797-85:
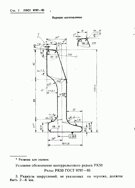
Настоящий стандарт распространяется на контррельсовые рельсы РК50, применяемые в конструкциях верхнего строения пути с железнодорожными рельсами типа Р50
ГРНТИ индекс(ы):
534329;732911
Нормативные ссылки, связанные с ГОСТ 9797-85:

Скачать ГОСТ 9797-85 вы можете в следующих версиях:

Дата добавления:
Тип файла:
Загрузок:
Размер:
12/12/2011 01:59
PDF с изображениями
146
0.3 Мб

Поправки и изменения к ГОСТ 9797-85:

  • Наименование, вид:
    Дата
    регистрации:
    начала действия:
  • Изменение к ГОСТ 9797-85. Утратил силу в РФ

    Тип изменения: Утратил силу в РФ
    Номер изменения:
    Регистрационный номер: 447-ст
    Новое значение: Утратил силу на территории РФ, с 01.01.2014 пользоваться ГОСТ Р 55497-2013

    2013-07-29
    2014-01-01
  • Изменение №1 к ГОСТ 9797-85

    Тип изменения: Текстовое изменение
    Номер изменения: 1
    Регистрационный номер: 3565
    Новое значение: -

    1989-12-05
    1990-07-01
  • Изменение №2 к ГОСТ 9797-85

    Тип изменения: Текстовое изменение
    Номер изменения: 2
    Регистрационный номер: 2214
    Новое значение: -

    1991-12-27
    1992-07-01

Текст стандарта

  • ГОСТ 9797-85, страница 1 страница 1
  • ГОСТ 9797-85, страница 2 страница 2
  • ГОСТ 9797-85, страница 3 страница 3
  • ГОСТ 9797-85, страница 4 страница 4
  • ГОСТ 9797-85, страница 5 страница 5
  • ГОСТ 9797-85, страница 6 страница 6
  • ГОСТ 9797-85, страница 7 страница 7
  • ГОСТ 9797-85, страница 8 страница 8