ГОСТ Р 71912-2024 Плиты парапетные железобетонные для производственных зданий. Технические условия

Категории ГОСТ Р 71912-2024 по ОКС:
Статус документа:
действует, введён в действие 01.03.2025
Название на английском языке:
Coping units of precast concrete for industrial buildings. Specifications
Дата актуализации информации по стандарту:
27.08.2025, в 11:27 (менее 3 месяцев назад)
Вид стандарта:
временно не известен
Дата начала действия ГОСТа:
2025-03-01
Число страниц:
12
Назначение ГОСТ Р 71912-2024:
не указано
Нормативные ссылки, связанные с ГОСТ Р 71912-2024:

Скачать ГОСТ Р 71912-2024 вы можете в следующих версиях:

В данный момент версий документа для скачивания не добавлено.

Мы стараемся пополнять базу документов еженедельно и из разных источников, в обозримом будущем версии для этого ГОСТа появятся.

Вы можете просмотреть online текст стандарта ГОСТ Р 71912-2024

Просмотреть текст ГОСТ Р 71912-2024

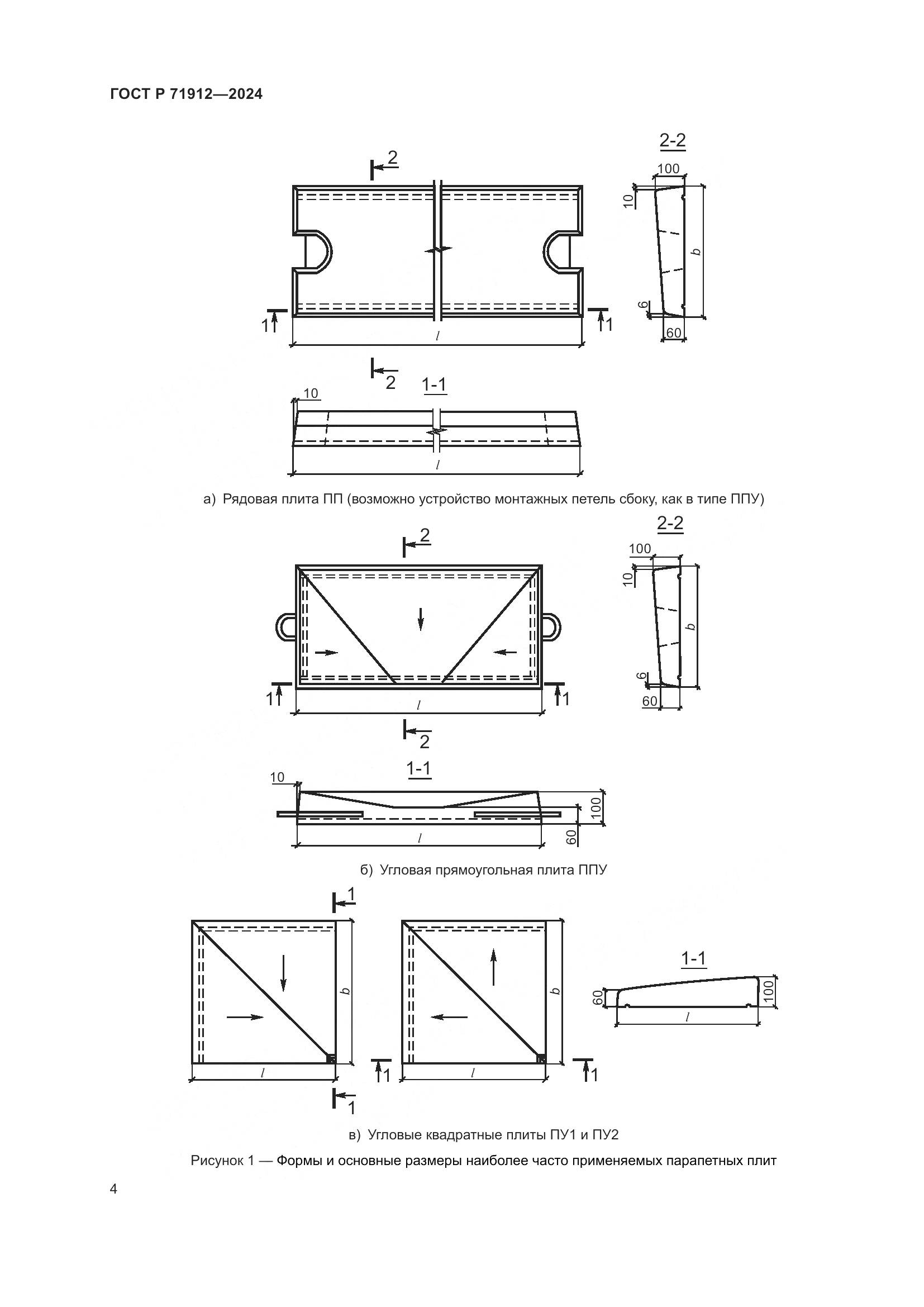
Текст стандарта

  • ГОСТ Р 71912-2024, страница 1 страница 1
  • ГОСТ Р 71912-2024, страница 2 страница 2
  • ГОСТ Р 71912-2024, страница 3 страница 3
  • ГОСТ Р 71912-2024, страница 4 страница 4
  • ГОСТ Р 71912-2024, страница 5 страница 5
  • ГОСТ Р 71912-2024, страница 6 страница 6
  • ГОСТ Р 71912-2024, страница 7 страница 7
  • ГОСТ Р 71912-2024, страница 8 страница 8
  • ГОСТ Р 71912-2024, страница 9 страница 9
  • ГОСТ Р 71912-2024, страница 10 страница 10
  • ГОСТ Р 71912-2024, страница 11 страница 11
  • ГОСТ Р 71912-2024, страница 12 страница 12