ГОСТ Р 71690-2024 Комплексы для производства, хранения и отгрузки сжиженного природного газа. Технологические блоки сжижения природного газа. Соединительные детали трубопроводов из аустенитной стали. Общие технические условия

Категории ГОСТ Р 71690-2024 по ОКС:
Статус документа:
действует, введён в действие 01.02.2025
Название на английском языке:
Complexes for the production, storage and shipment of liquefied natural gas. Technological units of natural gas liquefaction. Connecting parts of pipelines made of austenitic steels. General technical specifications
Дата актуализации информации по стандарту:
26.08.2025, в 20:51 (менее 3 месяцев назад)
Вид стандарта:
временно не известен
Дата начала действия ГОСТа:
2025-02-01
Число страниц:
54
Назначение ГОСТ Р 71690-2024:
не указано
Нормативные ссылки, связанные с ГОСТ Р 71690-2024:

Скачать ГОСТ Р 71690-2024 вы можете в следующих версиях:

В данный момент версий документа для скачивания не добавлено.

Мы стараемся пополнять базу документов еженедельно и из разных источников, в обозримом будущем версии для этого ГОСТа появятся.

Вы можете просмотреть online текст стандарта ГОСТ Р 71690-2024

Просмотреть текст ГОСТ Р 71690-2024

Текст стандарта

  • ГОСТ Р 71690-2024, страница 1 страница 1
  • ГОСТ Р 71690-2024, страница 2 страница 2
  • ГОСТ Р 71690-2024, страница 3 страница 3
  • ГОСТ Р 71690-2024, страница 4 страница 4
  • ГОСТ Р 71690-2024, страница 5 страница 5
  • ГОСТ Р 71690-2024, страница 6 страница 6
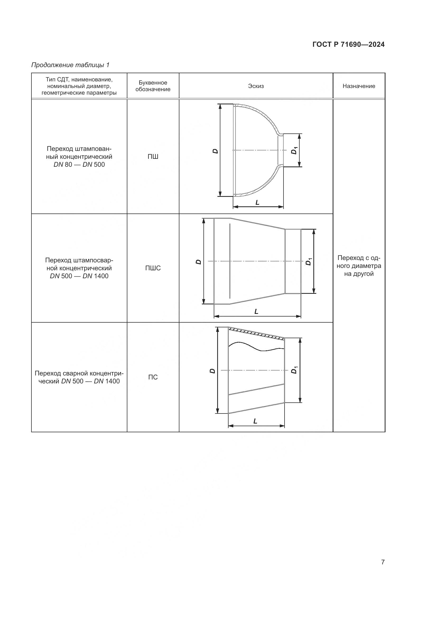
  • ГОСТ Р 71690-2024, страница 7 страница 7
  • ГОСТ Р 71690-2024, страница 8 страница 8
  • ГОСТ Р 71690-2024, страница 9 страница 9
  • ГОСТ Р 71690-2024, страница 10 страница 10
  • ГОСТ Р 71690-2024, страница 11 страница 11
  • ГОСТ Р 71690-2024, страница 12 страница 12
  • ГОСТ Р 71690-2024, страница 13 страница 13
  • ГОСТ Р 71690-2024, страница 14 страница 14
  • ГОСТ Р 71690-2024, страница 15 страница 15
  • ГОСТ Р 71690-2024, страница 16 страница 16
  • ГОСТ Р 71690-2024, страница 17 страница 17
  • ГОСТ Р 71690-2024, страница 18 страница 18
  • ГОСТ Р 71690-2024, страница 19 страница 19
  • ГОСТ Р 71690-2024, страница 20 страница 20
  • ГОСТ Р 71690-2024, страница 21 страница 21
  • ГОСТ Р 71690-2024, страница 22 страница 22
  • ГОСТ Р 71690-2024, страница 23 страница 23
  • ГОСТ Р 71690-2024, страница 24 страница 24
  • ГОСТ Р 71690-2024, страница 25 страница 25
  • ГОСТ Р 71690-2024, страница 26 страница 26
  • ГОСТ Р 71690-2024, страница 27 страница 27
  • ГОСТ Р 71690-2024, страница 28 страница 28
  • ГОСТ Р 71690-2024, страница 29 страница 29
  • ГОСТ Р 71690-2024, страница 30 страница 30
  • ГОСТ Р 71690-2024, страница 31 страница 31
  • ГОСТ Р 71690-2024, страница 32 страница 32
  • ГОСТ Р 71690-2024, страница 33 страница 33
  • ГОСТ Р 71690-2024, страница 34 страница 34
  • ГОСТ Р 71690-2024, страница 35 страница 35
  • ГОСТ Р 71690-2024, страница 36 страница 36
  • ГОСТ Р 71690-2024, страница 37 страница 37
  • ГОСТ Р 71690-2024, страница 38 страница 38
  • ГОСТ Р 71690-2024, страница 39 страница 39
  • ГОСТ Р 71690-2024, страница 40 страница 40
  • ГОСТ Р 71690-2024, страница 41 страница 41
  • ГОСТ Р 71690-2024, страница 42 страница 42
  • ГОСТ Р 71690-2024, страница 43 страница 43
  • ГОСТ Р 71690-2024, страница 44 страница 44
  • ГОСТ Р 71690-2024, страница 45 страница 45
  • ГОСТ Р 71690-2024, страница 46 страница 46
  • ГОСТ Р 71690-2024, страница 47 страница 47
  • ГОСТ Р 71690-2024, страница 48 страница 48
  • ГОСТ Р 71690-2024, страница 49 страница 49
  • ГОСТ Р 71690-2024, страница 50 страница 50
  • ГОСТ Р 71690-2024, страница 51 страница 51
  • ГОСТ Р 71690-2024, страница 52 страница 52
  • ГОСТ Р 71690-2024, страница 53 страница 53
  • ГОСТ Р 71690-2024, страница 54 страница 54