ГОСТ IEC 60695-11-2-2017 Испытания на пожароопасность. Часть 11-2. Испытательное пламя. Пламя предварительно подготовленной смеси мощностью 1 кВт. Аппаратура, руководство и порядок испытания на подтверждение соответствия

Категории ГОСТ IEC 60695-11-2-2017 по ОКС:
Статус документа:
действует, введён в действие 01.03.2019
Название на английском языке:
Fire hazard testing. Part 11-2. Test flames. 1 kW nominal pre-mixed flame. Apparatus, confirmatory test arrangement and guidance
Дата актуализации информации по стандарту:
05.11.2025, в 14:19 (менее 3 месяцев назад)
Вид стандарта:
Стандарты на методы контроля
Дата начала действия ГОСТа:
2019-03-01
Дата последнего издания документа:
2018-10-17
Число страниц:
21
Назначение ГОСТ IEC 60695-11-2-2017:
Настоящий стандарт устанавливает требования, предъявляемые к созданию и подтверждению соответствия испытательного пламени предварительно подготовленной смеси пропана и воздуха номинальной мощностью 1 кВт, используемого при проведении испытаний на пожароопасность
Документ разработан орг-ей:
Федеральное агентство по техническому регулированию и метрологии (Росстандарт)
Документ принят орг-ей:
Межгосударственный Совет по стандартизации метрологии и сертификации, протокол №52-2017
Ключевые слова документа:
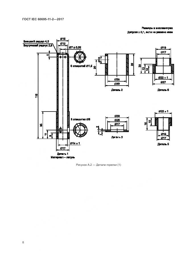
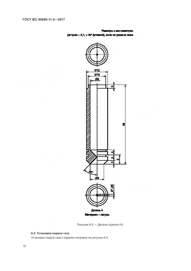
горелка, измерение, испытание, испытательное пламя, испытуемый образец, конструкция горелки, медный элемент, подтверждение соответствия, смесь газов

Скачать ГОСТ IEC 60695-11-2-2017 вы можете в следующих версиях:

Тип файла:
Дата добавления:
Загрузок:
Размер:
Тип файла:
PDF с изображениями
Добавлен:
20/11/2025 14:16
Скачиваний:
15
Размер файла:
1.18 Мб
  • ГОСТ IEC 60695-11-2-2017, страница 1 страница 1
  • ГОСТ IEC 60695-11-2-2017, страница 2 страница 2
  • ГОСТ IEC 60695-11-2-2017, страница 3 страница 3
  • ГОСТ IEC 60695-11-2-2017, страница 4 страница 4
  • ГОСТ IEC 60695-11-2-2017, страница 5 страница 5
  • ГОСТ IEC 60695-11-2-2017, страница 6 страница 6
  • ГОСТ IEC 60695-11-2-2017, страница 7 страница 7
  • ГОСТ IEC 60695-11-2-2017, страница 8 страница 8
  • ГОСТ IEC 60695-11-2-2017, страница 9 страница 9
  • ГОСТ IEC 60695-11-2-2017, страница 10 страница 10
  • ГОСТ IEC 60695-11-2-2017, страница 11 страница 11
  • ГОСТ IEC 60695-11-2-2017, страница 12 страница 12
  • ГОСТ IEC 60695-11-2-2017, страница 13 страница 13
  • ГОСТ IEC 60695-11-2-2017, страница 14 страница 14
  • ГОСТ IEC 60695-11-2-2017, страница 15 страница 15
  • ГОСТ IEC 60695-11-2-2017, страница 16 страница 16
  • ГОСТ IEC 60695-11-2-2017, страница 17 страница 17
  • ГОСТ IEC 60695-11-2-2017, страница 18 страница 18
  • ГОСТ IEC 60695-11-2-2017, страница 19 страница 19
  • ГОСТ IEC 60695-11-2-2017, страница 20 страница 20
  • ГОСТ IEC 60695-11-2-2017, страница 21 страница 21