ГОСТ IEC 60332-3-10-2015 Испытания электрических и оптических кабелей в условиях воздействия пламени. Часть 3-10. Распространение пламени по вертикально расположенным пучкам проводов или кабелей. Испытательная установка

Категории ГОСТ IEC 60332-3-10-2015 по ОКС:
Статус документа:
действует, введён в действие 01.12.2018
Название на английском языке:
Tests on electric and optical fibre cables under fire conditions. Part 3-10. Test for vertical flame spread of vertically-mounted bunched wires or cables. Apparatus
Дата актуализации информации по стандарту:
19.06.2025, в 16:22 (менее полугода назад)
Вид стандарта:
Стандарты на процессы
Дата начала действия ГОСТа:
2018-12-01
Дата последнего издания документа:
2018-06-09
Число страниц:
16
Назначение ГОСТ IEC 60332-3-10-2015:
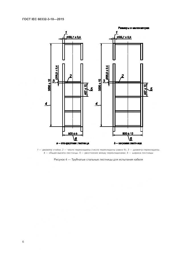
Настоящий стандарт входит в серию IEC 60332, состоящую из частей 3-10, 3-21, 3-22, 3-23, 3-24 и 3-25, и устанавливает методы испытаний по оценке распространения пламени в заданных условиях по вертикально расположенным пучкам электрических или оптических проводов или кабелей
Документ принят орг-ей:
Межгосударственный Совет по стандартизации метрологии и сертификации, протокол №47-2015
Ключевые слова документа:
в заданных условиях, испытательная установка, калибровка, наладка, оптические кабели, распространение пламени по вертикально расположенным пучкам, электрические кабели и провода
Нормативные ссылки, связанные с ГОСТ IEC 60332-3-10-2015:

Скачать ГОСТ IEC 60332-3-10-2015 вы можете в следующих версиях:

В данный момент версий документа для скачивания не добавлено.

Мы стараемся пополнять базу документов еженедельно и из разных источников, в обозримом будущем версии для этого ГОСТа появятся.

Вы можете просмотреть online текст стандарта ГОСТ IEC 60332-3-10-2015

Просмотреть текст ГОСТ IEC 60332-3-10-2015

Текст стандарта

  • ГОСТ IEC 60332-3-10-2015, страница 1 страница 1
  • ГОСТ IEC 60332-3-10-2015, страница 2 страница 2
  • ГОСТ IEC 60332-3-10-2015, страница 3 страница 3
  • ГОСТ IEC 60332-3-10-2015, страница 4 страница 4
  • ГОСТ IEC 60332-3-10-2015, страница 5 страница 5
  • ГОСТ IEC 60332-3-10-2015, страница 6 страница 6
  • ГОСТ IEC 60332-3-10-2015, страница 7 страница 7
  • ГОСТ IEC 60332-3-10-2015, страница 8 страница 8
  • ГОСТ IEC 60332-3-10-2015, страница 9 страница 9
  • ГОСТ IEC 60332-3-10-2015, страница 10 страница 10
  • ГОСТ IEC 60332-3-10-2015, страница 11 страница 11
  • ГОСТ IEC 60332-3-10-2015, страница 12 страница 12
  • ГОСТ IEC 60332-3-10-2015, страница 13 страница 13
  • ГОСТ IEC 60332-3-10-2015, страница 14 страница 14
  • ГОСТ IEC 60332-3-10-2015, страница 15 страница 15
  • ГОСТ IEC 60332-3-10-2015, страница 16 страница 16