ГОСТ Р 6.30-2003
ГОСТ Р 6.30-2003 Унифицированные системы документации. Унифицированная система организационно-распорядительной документации. Требования к оформлению документов
Категории ГОСТ Р 6.30-2003 по ОКС:- 01. Общие положения
- 01.140. Информатика. Издательское дело
- 01.140.30 Документы в управлении, торговле и промышленности *техническая документация на продукцию см. 01.110 *банковские документы см. 03.060 *электронный обмен данными (эди) см. 35.240.60
- Статус документа:
- заменен, введён в действие 01.07.2003
- Название на английском языке:
- Unified systems of documentation. Unified system of managerial documentation. Requirements for presentation of documents
- Дата актуализации информации по стандарту:
- 18.09.2019, в 13:21 (более года назад)
- Вид стандарта:
- Основополагающие стандарты
- Дата начала действия ГОСТа:
- 2003-07-01
- Срок действия ограничен:
- 01.07.2018
- Дата последнего издания документа:
- 2008-08-01
- Код КГС:
- Т54
- Код ОКСТУ:
- 0006
- Число страниц:
- 20
- Назначение ГОСТ Р 6.30-2003:
- Настоящий стандарт распространяется на организационно-распорядительные документы, относящиеся к Унифицированной системе организационно-распорядительной документации - постановления, распоряжения, приказы, решения, протоколы, акты, письма и др., включенные в Общероссийский классификатор управленческой документации (класс 0200000). Настоящий стандарт устанавливает: состав реквизитов документов; требования к оформлению реквизитов документов; требования к бланкам документов, включая бланки документов с воспроизведением Государственного герба Российской Федерации
- Документ разработан орг-ей:
- Госстандарт России
- Ключевые слова документа:
- бланк, гербовый бланк, документ, контроль, организационно-распорядительные документы, регистрация, реквизит, состав реквизитов документов, учет
- На стандарт ссылаются:
- ГОСТ Р 53704-2009, ГОСТ Р 52978-2008, ГОСТ Р 52977-2008, ГОСТ Р 21.1101-2009, ГОСТ Р 52537-2006, ГОСТ 2.105-95
Скачать ГОСТ Р 6.30-2003 вы можете в следующих версиях:
Текст стандарта
ГОСТ Р 6.30-2003
Группа Т54
ГОСУДАРСТВЕННЫЙ СТАНДАРТ РОССИЙСКОЙ ФЕДЕРАЦИИ
Унифицированные системы документации
УНИФИЦИРОВАННАЯ СИСТЕМА 
ОРГАНИЗАЦИОННО-РАСПОРЯДИТЕЛЬНОЙ ДОКУМЕНТАЦИИ
Требования к оформлению документов
Unified systems of documentation. Unified system of managerial documentation.
Requirements for presentation of documents 
     
ОКС 01.140.30
ОКСТУ 0006 
Дата введения 2003-07-01
Предисловие 
     1 РАЗРАБОТАН Всероссийским научно-исследовательским институтом документоведения и архивного дела (ВНИИДАД) Федеральной архивной службы России
     
     ВНЕСЕН Научно-техническим управлением Госстандарта России
     
     2 ПРИНЯТ И ВВЕДЕН В ДЕЙСТВИЕ Постановлением Госстандарта России от 3 марта 2003 г. N  65-ст
     
     3 ВВЕДЕН ВПЕРВЫЕ
     
     
1.  Область применения 
     Настоящий стандарт распространяется на организационно-распорядительные документы, относящиеся к Унифицированной системе организационно-распорядительной документации (УСОРД), - постановления, распоряжения, приказы, решения, протоколы, акты, письма и др. (далее - документы), включенные в ОК 011-93 "Общероссийский классификатор управленческой документации" (ОКУД) (класс 0200000).
     
     Настоящий стандарт устанавливает: состав реквизитов документов; требования к оформлению реквизитов документов; требования к бланкам документов, включая бланки документов с воспроизведением Государственного герба Российской Федерации.
     
     Схемы расположения реквизитов документов приведены в приложении А; образцы бланков документов - в приложении Б.
     
     Требования настоящего стандарта являются рекомендуемыми.
     
     
2. Состав реквизитов документов
     При подготовке и оформлении документов используют следующие реквизиты:
     
     01 - Государственный герб Российской Федерации;
     
     02 - герб субъекта Российской Федерации;
     
     03 - эмблема организации или товарный знак (знак обслуживания);
     
     04 - код организации;
     
     05 - основной государственный регистрационный номер (ОГРН) юридического лица;
     
     06 - идентификационный номер налогоплательщика/код причины постановки на учет (ИНН/КПП);
     
     07 - код формы документа;
     
     08 - наименование организации;
     
     09 - справочные данные об организации;
     
     10 - наименование вида документа;
     
     11 - дата документа;
     
     12 - регистрационный номер документа;
     
     13 - ссылка на регистрационный номер и дату документа;
     
     14 - место составления или издания документа;
     
     15 - адресат;
     
     16 - гриф утверждения документа;
     
     17 - резолюция;
     
     18 - заголовок к тексту;
     
     19 - отметка о контроле;
     
     20 - текст документа;
     
     21 - отметка о наличии приложения;
     
     22 - подпись;
     
     23 - гриф согласования документа;
     
     24 - визы согласования документа;
     
     25 - оттиск печати;
     
     26 - отметка о заверении копии;
     
     27 - отметка об исполнителе;
     
     28 - отметка об исполнении документа и направлении его в дело;
     
     29 - отметка о поступлении документа в организацию;
     
     30 - идентификатор электронной копии документа.
     
     
3. Требования к оформлению реквизитов документов
     3.1 Государственный герб Российской Федерации помещают на бланках документов в соответствии с Федеральным конституционным законом "О Государственном гербе Российской Федерации" (Собрание законодательства Российской Федерации, 2000, N  52, часть I, ст.5021).
     
     3.2 Герб субъекта Российской Федерации помещают на бланках документов в соответствии с правовыми актами субъектов Российской Федерации.
     
     3.3 Эмблему организации или товарный знак (знак обслуживания) помещают на бланках организаций в соответствии с уставом (положением об организации).
     
     3.4 Код организации проставляют по Общероссийскому классификатору предприятий и организаций (ОКПО).
     
     3.5 Основной государственный регистрационный номер (ОГРН) юридического лица проставляют в соответствии с документами, выдаваемыми налоговыми органами.
     
     3.6 Идентификационный номер налогоплательщика/код причины постановки на учет (ИНН/КПП) проставляют в соответствии с документами, выдаваемыми налоговыми органами.
     
     3.7 Код формы документа проставляют по Общероссийскому классификатору управленческой документации (ОКУД).
     
     3.8 Наименование организации, являющейся автором документа, должно соответствовать наименованию, закрепленному в ее учредительных документах.
     
     Над наименованием организации указывают сокращенное, а при его отсутствии - полное наименование вышестоящей организации (при ее наличии).
     
     Наименования организаций субъектов Российской Федерации, имеющих наряду с государственным языком Российской Федерации (русским) государственный язык субъектов Российской Федерации, печатают на двух языках.
     
     Наименование организации на государственном языке субъекта Российской Федерации или ином языке располагают ниже или справа от наименования на государственном языке Российской Федерации.
     
     Сокращенное наименование организации приводят в тех случаях, когда оно закреплено в учредительных документах организации. Сокращенное наименование (в скобках) помещают ниже полного или за ним.
     
     Наименование филиала, территориального отделения, представительства указывают в том случае, если оно является автором документа, и располагают ниже наименования организации.
     
     3.9 Справочные данные об организации включают в себя: почтовый адрес; номер телефона и другие сведения по усмотрению организации (номера факсов, телексов, счетов в банке, адрес электронной почты и др.).
     
     3.10 Наименование вида документа, составленного или изданного организацией, должно быть определено уставом (положением об организации) и должно соответствовать видам документов, предусмотренным ОКУД (класс 0200000).
     
     3.11 Датой документа является дата его подписания или утверждения, для протокола - дата заседания (принятия решения), для акта - дата события. Документы, изданные двумя или более организациями, должны иметь одну (единую) дату.
     
     Дату документа оформляют арабскими цифрами в последовательности: день месяца, месяц, год. День месяца и месяц оформляют двумя парами арабских цифр, разделенными точкой; год - четырьмя арабскими цифрами.
     
     Например, дату 5 июня 2003 г. следует оформлять 05.06.2003.
     
     Допускается словесно-цифровой способ оформления даты, например 05 июня 2003 г., а также оформление даты в последовательности: год, месяц, день месяца, например: 2003.06.05.
     
     3.12 Регистрационный номер документа состоит из его порядкового номера, который можно дополнять по усмотрению организации индексом дела по номенклатуре дел, информацией о корреспонденте, исполнителях и др.
     
     Регистрационный номер документа, составленного совместно двумя и более организациями, состоит из регистрационных номеров документа каждой из этих организаций, проставляемых через косую черту в порядке указания авторов в документе.
     
     3.13 Ссылка на регистрационный номер и дату документа включает в себя регистрационный номер и дату документа, на который должен быть дан ответ.
     
     3.14 Место составления или издания документа указывают в том случае, если затруднено его определение по реквизитам "Наименование организации" и "Справочные данные об организации". Место составления или издания указывают с учетом принятого административно-территориального деления, оно включает в себя только общепринятые сокращения.
     
     3.15 В качестве адресата могут быть организации, их структурные подразделения, должностные или физические лица. При адресовании документа должностному лицу инициалы указывают перед фамилией. Наименование организации и ее структурного подразделения указывают в именительном падеже. Например (здесь и далее примеры наименования организаций, их справочные данные и др. являются условными):
     
| Минюст России  | 
     Должность лица, которому адресован документ, указывают в дательном падеже, например:
| Генеральному директору  | |
| или  | |
| АО "Электроцентромонтаж"  | 
     Если документ отправляют в несколько однородных организаций или в несколько структурных подразделений одной организации, то их следует yказывать обобщенно, например:
| Администрации районов  | 
     Допускается центрировать каждую строку реквизита "Адресат" по отношению к самой длинной строке. Например:
| Главному редактору | 
     Документ не должен содержать более четырех адресатов. Слово "Копия" перед вторым, третьим, четвертым адресатами не указывают. При большем числе адресатов составляют список рассылки документа. 
     
     В состав реквизита "Адресат" может входить почтовый адрес. Элементы почтового адреса указывают в последовательности, установленной правилами оказания услуг почтовой связи. 
     
     При адресовании письма в организацию указывают ее наименование, затем почтовый адрес, например:
     
| Государственное учреждение | 
     При адресовании документа физическому лицу указывают фамилию и инициалы получателя, затем почтовый адрес, например:
     
| Образцову О.П. | 
     3.16 Документ утверждается должностным лицом (должностными лицами) или специально издаваемым документом. При утверждении документа должностным лицом гриф утверждения документа должен состоять из слова УТВЕРЖДАЮ (без кавычек), наименования должности лица, утверждающего документ, его подписи, инициалов, фамилии и даты утверждения, например:
     
| УТВЕРЖДАЮ | ||
| Личная подпись  | В.А. Степанов  | |
| Дата  | ||
     Допускается в реквизите "Гриф утверждения документа" центрировать элементы относительно самой длинной строки, например:
     
| УТВЕРЖДАЮ | 
     При утверждении документа несколькими должностными лицами их подписи располагают на одном уровне.
     
     При утверждении документа постановлением, решением, приказом, протоколом гриф утверждения состоит из слова УТВЕРЖДЕН (УТВЕРЖДЕНА, УТВЕРЖДЕНЫ или УТВЕРЖДЕНО), наименования утверждающего документа в творительном падеже, его даты, номера. Например:
     
| УТВЕРЖДЕН | |
|      или  | |
| УТВЕРЖДЕНО  | 
     Гриф утверждения документа располагают в правом верхнем углу документа. 
     
     3.17 Резолюция, написанная на документе соответствующим должностным лицом, включает в себя фамилии, инициалы исполнителей, содержание поручения (при необходимости), срок исполнения, подпись и дату, например:
     
| Морозовой Н.В.  | 
     Допускается оформление резолюции на отдельном листе.
     
     3.18 Заголовок к тексту включает в себя краткое содержание документа. Заголовок должен быть согласован с наименованием вида документа.
     
     Заголовок может отвечать на вопросы:
     
     о чем (о ком)?, например:
     
     Приказ о создании аттестационной комиссии;
     
     чего (кого)?, например:
     
     Должностная инструкция ведущего эксперта.
     
     К тексту документов, оформленных на бланках формата А5, заголовок допускается не указывать.
     
     3.19 Отметку о контроле за исполнением документа обозначают буквой "К", словом или штампом "Контроль".
     
     3.20 Текст документа составляют на государственном языке Российской Федерации или на государственных языках субъектов Российской Федерации в соответствии с законодательством Российской Федерации и субъектов Российской Федерации.
     
     Тексты документов оформляют в виде анкеты, таблицы, связного текста или в виде соединения этих структур.
     
     При составлении текста в виде анкеты наименования признаков характеризуемого объекта должны быть выражены именем существительным в именительном падеже или словосочетанием с глаголом второго лица множественного числа настоящего или прошедшего времени ("имеете", "владеете" или "были", "находились" и т.д.). Характеристики, выраженные словесно, должны быть согласованы с наименованиями признаков.
     
     Графы и строки таблицы должны иметь заголовки, выраженные именем существительным в именительном падеже. Подзаголовки граф и строк должны быть согласованы с заголовками. Если таблицу печатают более чем на одной странице, графы таблицы должны быть пронумерованы и на следующих страницах должны быть напечатаны только номера этих граф.
     
     Связный текст, как правило, состоит из двух частей. В первой части указывают причины, основания, цели составления документа, во второй (заключительной) - решения, выводы, просьбы, предложения, рекомендации. Текст может содержать одну заключительную часть (например, приказы - распорядительную часть без констатирующей; письма, заявления - просьбу без пояснения).
     
     В тексте документа, подготовленного на основании документов других организаций или ранее изданных документов, указывают их реквизиты: наименование документа, наименование организации - автора документа, дату документа, регистрационный номер документа, заголовок к тексту.
     
     Если текст содержит несколько решений, выводов и т.д., то его можно разбивать на разделы, подразделы, пункты, которые нумеруют арабскими цифрами.
     
     В документах (приказ, распоряжение и т.д.) организаций, действующих на принципах единоначалия, а также документах, адресованных руководству организации, текст излагают от первого лица единственного числа ("приказываю", "предлагаю", "прошу").
     
     В документах коллегиальных органов текст излагают от третьего лица единственного числа ("постановляет", "решил").
     
     В совместных документах текст излагают от первого лица множественного числа ("приказываем", "решили").
     
     Текст протокола излагают от третьего лица множественного числа ("слушали", "выступили", "постановили", "решили").
     
     В документах, устанавливающих права и обязанности организаций, их структурных подразделений (положение, инструкция), а также содержащих описание, оценку фактов или выводы (акт, справка), используют форму изложения текста от третьего лица единственного или множественного числа ("отдел осуществляет функции", "в состав объединения входят", "комиссия установила").
     
     В письмах используют следующие формы изложения:
     
     - от первого лица множественного числа ("просим направить", "направляем на рассмотрение");
     
     - от первого лица единственного числа ("считаю необходимым", "прошу выделить");
     
     - от третьего лица единственного числа ("министерство не возражает", "ВНИИДАД считает возможным").
     
     3.21 Отметку о наличии приложения, названного в тексте письма, оформляют следующим образом:
     
     Приложение: на 5 л. в 2 экз.
     
     Если письмо имеет приложение, не названное в тексте, то указывают его наименование, число листов и число экземпляров; при наличии нескольких приложений их нумеруют, например:
          
| Приложение: | 1. Положение об Управлении регионального кредитования на 5 л. в 1 экз. | |||
| 2. Правила подготовки и оформления документов Управления регионального кредитования на 7 л. в 2 экз. | ||||
     Если приложения сброшюрованы, то число листов не указывают.
     
     Если к документу прилагают другой документ, также имеющий приложение, отметку о наличии приложения оформляют следующим образом:
     
     Приложение: письмо Росархива от 05.06.2003  02-6/172 и приложение к нему, всего на 3 л.
 02-6/172 и приложение к нему, всего на 3 л.
     
     Если приложение направляют не во все указанные в документе адреса, то отметку о его наличии оформляют следующим образом:
     
     Приложение: на 3 л. в 5 экз. только в первый адрес.
     
     В приложении к распорядительному документу (постановления, приказы, распоряжения, правила, инструкции, положения, решения) на первом его листе в правом верхнем углу пишут "Приложение  " с указанием наименования распорядительного документа, его даты и регистрационного номера, например:
" с указанием наименования распорядительного документа, его даты и регистрационного номера, например:
     
| Приложение  | 
     Допускается выражение "ПРИЛОЖЕНИЕ  " печатать прописными буквами, а также центрировать это выражение, наименование документа, его дату и регистрационный номер относительно самой длинной строки, например:
" печатать прописными буквами, а также центрировать это выражение, наименование документа, его дату и регистрационный номер относительно самой длинной строки, например:
     
| ПРИЛОЖЕНИЕ  | 
     3.22 В состав реквизита "Подпись" входят: наименование должности лица, подписавшего документ (полное, если документ оформлен не на бланке документа, и сокращенное - на документе, оформленном на бланке); личная подпись; расшифровка подписи (инициалы, фамилия), например:
     
| Вице-президент Ассоциации региональных предприятий | 
 | 
 | 
|      или на бланке: | ||
| Вице-президент | Личная подпись | А.А. Борисов | 
     Допускается в реквизите "Подпись" центрировать наименование должности лица, подписавшего документ, относительно самой длинной строки. Например:
     
| Исполнительный директор  | 
 | 
 | 
     При оформлении документа на бланке должностного лица должность этого лица в подписи не указывают.
     
     При подписании документа несколькими должностными лицами их подписи располагают одну под другой в последовательности, соответствующей занимаемой должности, например:
     
| Директор института | Личная подпись | М.В. Ларин | 
| Главный бухгалтер | Личная подпись | З.В. Марьяш | 
     При подписании документа несколькими лицами равных должностей их подписи располагают на одном уровне, например:
     
| Заместитель директора | Заместитель директора  | ||
| Личная подпись  | Ю.Г. Демидов  | Личная подпись  | К.И. Игнатьев  | 
     При подписании совместного документа первый лист оформляют не на бланке.
     
     В документах, составленных комиссией, указывают не должности лиц, подписывающих документ, а их обязанности в составе комиссии в соответствии с распределением, например:
     
| Председатель комиссии | Личная подпись | В.Д. Банасюкевич | 
| Члены комиссии | Личная подпись | А.Н. Сокова | 
| Личная подпись | А.С. Красавин | |
| Личная подпись | О.И. Рысков | 
     3.23 Гриф согласования документа состоит из слова СОГЛАСОВАНО, должности лица, с которым согласован документ (включая наименование организации), личной подписи, расшифровки подписи (инициалов, фамилии) и даты согласования, например:
     
СОГЛАСОВАНО
Ректор Финансовой академии 
при Правительстве Российской Федерации
     
| Личная подпись | А.Г. Грязнова | 
| Дата | 
     Если согласование осуществляют письмом, протоколом и др., гриф согласования оформляют следующим образом:
     
| СОГЛАСОВАНО | 
|      или | 
| СОГЛАСОВАНО | 
     3.24 Согласование документа оформляют визой согласования документа (далее - виза), включающей в себя подпись и должность визирующего документ, расшифровку подписи (инициалы, фамилию) и дату подписания. Например:
     
| Руководитель юридического отдела | |
| Личная подпись | А.С. Орлов | 
| Дата | |
     При наличии замечаний к документу визу оформляют следующим образом:
     
   Замечания прилагаются
     
| Руководитель юридического отдела | |
| Личная подпись  | А.С. Орлов | 
| Дата  | |
     Замечания излагают на отдельном листе, подписывают и прилагают к документу. 
     
     Для документа, подлинник которого остается в организации, визы проставляют в нижней части оборотной стороны последнего листа подлинника документа.
     
     Для документа, подлинник которого отправляют из организации, визы проставляют в нижней части лицевой стороны копии отправляемого документа.
     
     Возможно оформление виз документа на отдельном листе согласования. 
     
     Допускается, по усмотрению организации, полистное визирование документа и его приложения.
     
     3.25 Оттиск печати заверяет подлинность подписи должностного лица на документах, удостоверяющих права лиц, фиксирующих факты, связанные с финансовыми средствами, а также на иных документах, предусматривающих заверение подлинной подписи.
     
     Документы заверяют печатью организации.
     
     3.26 При заверении соответствия копии документа подлиннику ниже реквизита "Подпись" проставляют заверительную надпись: "Верно"; должность лица, заверившего копию; личную подпись; расшифровку подписи (инициалы, фамилию); дату заверения, например:
     
| Верно | ||
| Инспектор службы кадров | Личная подпись | Т.С. Левченко | 
| Дата | 
     Допускается копию документа заверять печатью, определяемой по усмотрению организации.
     
     3.27 Отметка об исполнителе включает в себя инициалы и фамилию исполнителя документа и номер его телефона. Отметку об исполнителе располагают на лицевой или оборотной стороне последнего листа документа в левом нижнем углу, например:
     
В.А. Жуков 
924 45 67
     
     3.28 Отметка об исполнении документа и направлении его в дело включает в себя следующие данные: ссылку на дату и номер документа, свидетельствующего о его исполнении, или при отсутствии такого документа краткие сведения об исполнении; слова "В дело"; номер дела, в котором будет храниться документ.
     
     Отметка об исполнении документа и направлении его в дело подписывается и датируется исполнителем документа или руководителем структурного подразделения, в котором исполнен документ.
     
     3.29 Отметка о поступлении документа в организацию содержит очередной порядковый номер и дату поступления документа (при необходимости - часы и минуты).
     
     Допускается отметку о поступлении документа в организацию проставлять в виде штампа.
     
     3.30 Идентификатором электронной копии документа является отметка (колонтитул), проставляемая в левом нижнем углу каждой страницы документа и содержащая наименование файла на машинном носителе, дату и другие поисковые данные, устанавливаемые в организации.
     
     
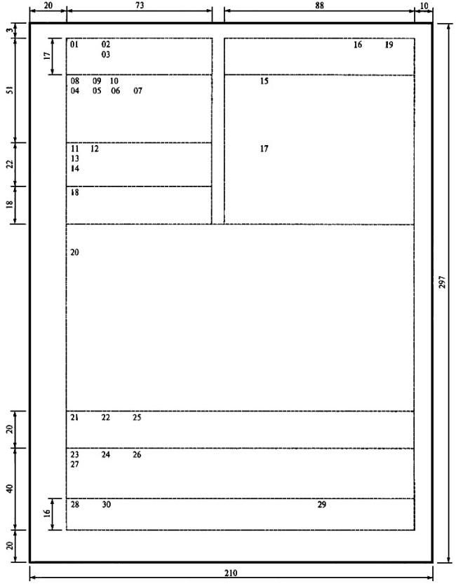
4. Требования к бланкам документов
     4.1 Документы изготавливают на бланках.
     
     Устанавливают два стандартных формата бланков документов - А4 (210х297 мм) и А5 (148х210 мм).
     
     Каждый лист документа, оформленный как на бланке, так и без него, должен иметь поля не менее:
     
     20 мм - левое;
     
     10 мм - правое;
     
     20 мм - верхнее;
     
     20 мм - нижнее.
     
     4.2 Бланки документов следует изготавливать на белой бумаге или бумаге светлых тонов.
     
     4.3 Бланки документов оформляют в соответствии с приложением А. Ориентировочные границы зон расположения реквизитов обозначены пунктиром. Каждая зона определяется совокупностью входящих в нее реквизитов.
     
     4.4 В зависимости от расположения реквизитов устанавливают два варианта бланков - угловой (рисунок А.1) и продольный (рисунок А.2).
     
     4.5 Реквизит 01 (02 или 03) располагают над серединой реквизита 08. Реквизит 03 допускается располагать на уровне реквизита 08.
     
     Реквизиты 08, 09, 10, 14, ограничительные отметки для реквизитов 11, 12, 13 в пределах границ зон расположения реквизитов размещают одним из способов:
     
     - центрированным (начало и конец каждой строки реквизитов равно удалены от границ зоны расположения реквизитов);
     
     - флаговым (каждая строка реквизитов начинается от левой границы зоны расположения реквизитов).
     
     4.6 Для организации, ее структурного подразделения, должностного лица устанавливают следующие виды бланков документов:
     
     - общий бланк;
     
     - бланк письма;
     
     - бланк конкретного вида документа.
     
     4.7 Общий бланк используют для изготовления любых видов документов, кроме письма.
     
     Общий бланк в зависимости от учредительных документов организации включает в себя реквизиты 01 (02 или 03), 08, 11, 14.
     
     Бланк письма в зависимости от учредительных документов организации включает в себя реквизиты 01 (02 или 03), 04, 05, 06, 08, 09 и, при необходимости, ограничительные отметки для верхних границ зон расположения реквизитов 11, 12, 13, 14, 15, 17, 18, 19, 20.
     
     Бланк конкретного вида документа, кроме письма, в зависимости от учредительных документов организации включает в себя реквизиты 01 (02 или 03), 08, 10, 14 и, при необходимости, ограничительные отметки для границ зон расположения реквизитов 11, 12, 13, 18, 19.
     
     4.8 Для организаций субъектов Российской Федерации, имеющих наряду с государственным языком Российской Федерации государственный язык субъекта Российской Федерации, целесообразно использование продольного бланка; при этом реквизиты 08, 09, 14 печатают на двух языках: русском (слева) и национальном (справа) на одном уровне.
     
     4.9 При изготовлении документов на двух и более страницах вторую и последующие страницы нумеруют.
     
     Номера страниц проставляют посередине верхнего поля листа.
     
     
ПРИЛОЖЕНИЕ А (справочное). СХЕМЫ РАСПОЛОЖЕНИЯ РЕКВИЗИТОВ ДОКУМЕНТОВ
ПРИЛОЖЕНИЕ А 
(справочное)
Рисунок А.1 - Расположение реквизитов и границы зон на формате А4 углового бланка

Рисунок А.1 - Расположение реквизитов и границы зон на формате А4 углового бланка
Рисунок А.2 - Расположение реквизитов и границы зон на формате А4 продольного бланка

Рисунок А.2 - Расположение реквизитов и границы зон на формате А4 продольного бланка
ПРИЛОЖЕНИЕ Б (справочное). ОБРАЗЦЫ БЛАНКОВ ДОКУМЕНТОВ
ПРИЛОЖЕНИЕ Б 
(справочное)
Рисунок Б.1 - Образец общего бланка организации

Рисунок Б.1 - Образец общего бланка организации
Рисунок Б.2 - Образец углового бланка письма организации

Рисунок Б.2 - Образец углового бланка письма организации
Рисунок Б.3 - Образец продольного бланка письма организации

Рисунок Б.3 - Образец продольного бланка письма организации
Рисунок Б.4 - Образец продольного бланка письма должностного лица

Рисунок Б.4 - Образец продольного бланка письма должностного лица
Рисунок Б.5 - Образец бланка конкретного вида документа организации

Рисунок Б.5 - Образец бланка конкретного вида документа организации 
     
     
Текст документа сверен по:
официальное издание
М.: ИПК Издательство стандартов, 2003 
|  | Электронный текст документа подготовлен информационным порталом GostExpert.ru 2014 г. Online версия ГОСТ Р 6.30-2003 | 
 14
 14 82
 82 2
 2  319
 319 2
 2  251
 251  430-162
 430-162 10
 10