ГОСТ Р 56235-2014 Заявление и проверка характеристик изоляции воздушного шума звукоизоляционных изделий

Категории ГОСТ Р 56235-2014 по ОКС:
Статус документа:
действует, введён в действие 01.12.2015
Название на английском языке:
Declaration and verification of airborne sound insulation values for sound insulators
Дата актуализации информации по стандарту:
11.08.2025, в 13:28 (менее 3 месяцев назад)
Вид стандарта:
временно не известен
Дата начала действия ГОСТа:
2015-12-01
Число страниц:
16
Назначение ГОСТ Р 56235-2014:
не указано
Нормативные ссылки, связанные с ГОСТ Р 56235-2014:

Скачать ГОСТ Р 56235-2014 вы можете в следующих версиях:

Дата добавления:
Тип файла:
Загрузок:
Размер:
23/01/2016 01:45
PDF с изображениями
0
0.62 Мб

Текст стандарта

  • ГОСТ Р 56235-2014, страница 1 страница 1
  • ГОСТ Р 56235-2014, страница 2 страница 2
  • ГОСТ Р 56235-2014, страница 3 страница 3
  • ГОСТ Р 56235-2014, страница 4 страница 4
  • ГОСТ Р 56235-2014, страница 5 страница 5
  • ГОСТ Р 56235-2014, страница 6 страница 6
  • ГОСТ Р 56235-2014, страница 7 страница 7
  • ГОСТ Р 56235-2014, страница 8 страница 8
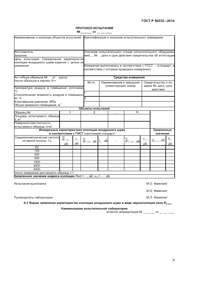
  • ГОСТ Р 56235-2014, страница 9 страница 9
  • ГОСТ Р 56235-2014, страница 10 страница 10
  • ГОСТ Р 56235-2014, страница 11 страница 11
  • ГОСТ Р 56235-2014, страница 12 страница 12
  • ГОСТ Р 56235-2014, страница 13 страница 13
  • ГОСТ Р 56235-2014, страница 14 страница 14
  • ГОСТ Р 56235-2014, страница 15 страница 15
  • ГОСТ Р 56235-2014, страница 16 страница 16