ГОСТ 34464.5-2023 Краны грузоподъемные. Информация, предоставляемая по запросу. Часть 5. Краны мостовые и козловые

Категории ГОСТ 34464.5-2023 по ОКС:
Статус документа:
действует, введён в действие 01.01.2024
Название на английском языке:
Cranes. Information to be provided. Part 5. Overhead travelling and portal bridge cranes
Дата актуализации информации по стандарту:
19.08.2025, в 08:39 (менее 3 месяцев назад)
Вид стандарта:
временно не известен
Дата начала действия ГОСТа:
2024-01-01
Число страниц:
16
Назначение ГОСТ 34464.5-2023:
не указано
Нормативные ссылки, связанные с ГОСТ 34464.5-2023:

Скачать ГОСТ 34464.5-2023 вы можете в следующих версиях:

В данный момент версий документа для скачивания не добавлено.

Мы стараемся пополнять базу документов еженедельно и из разных источников, в обозримом будущем версии для этого ГОСТа появятся.

Вы можете просмотреть online текст стандарта ГОСТ 34464.5-2023

Просмотреть текст ГОСТ 34464.5-2023

Текст стандарта

  • ГОСТ 34464.5-2023, страница 1 страница 1
  • ГОСТ 34464.5-2023, страница 2 страница 2
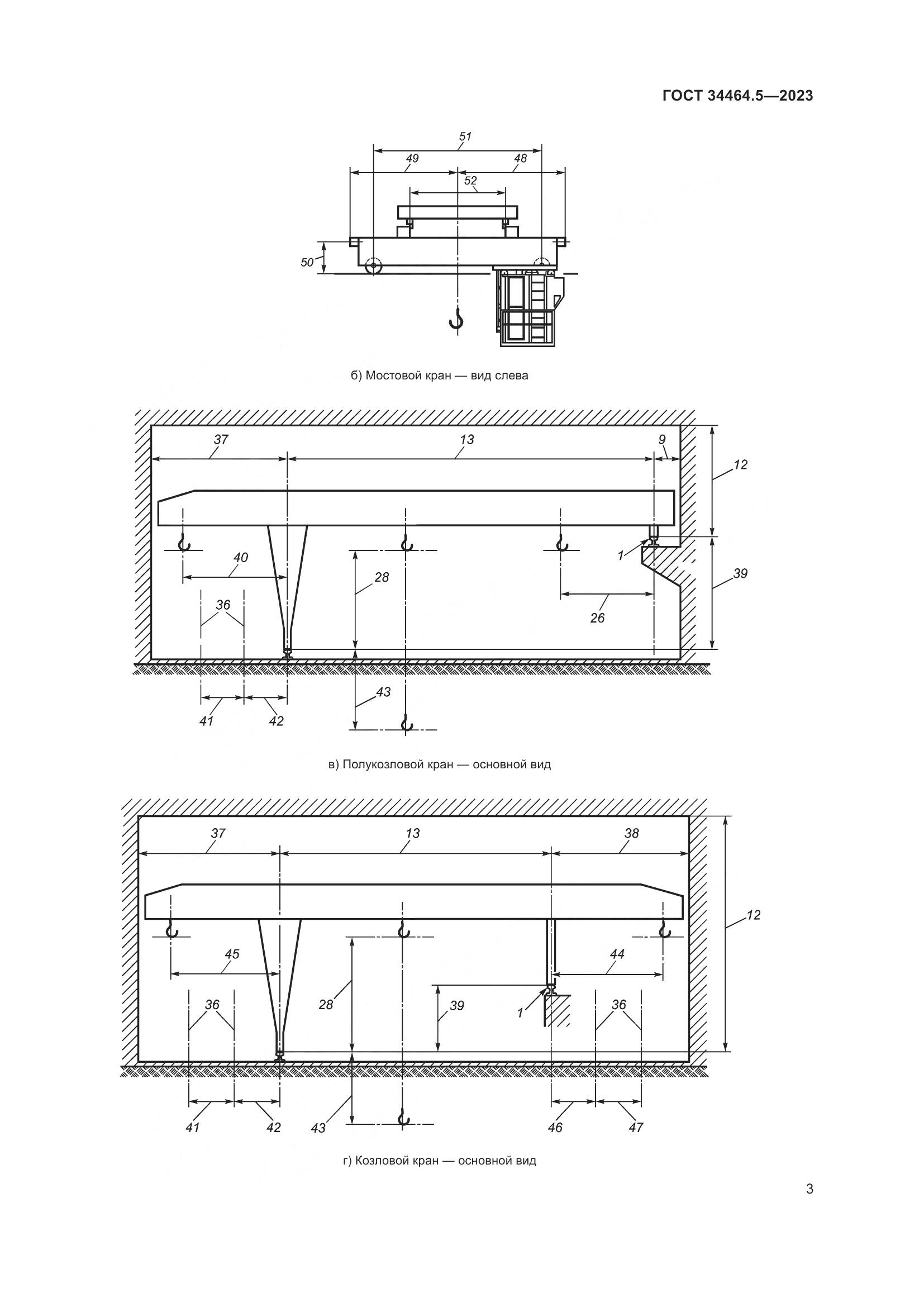
  • ГОСТ 34464.5-2023, страница 3 страница 3
  • ГОСТ 34464.5-2023, страница 4 страница 4
  • ГОСТ 34464.5-2023, страница 5 страница 5
  • ГОСТ 34464.5-2023, страница 6 страница 6
  • ГОСТ 34464.5-2023, страница 7 страница 7
  • ГОСТ 34464.5-2023, страница 8 страница 8
  • ГОСТ 34464.5-2023, страница 9 страница 9
  • ГОСТ 34464.5-2023, страница 10 страница 10
  • ГОСТ 34464.5-2023, страница 11 страница 11
  • ГОСТ 34464.5-2023, страница 12 страница 12
  • ГОСТ 34464.5-2023, страница 13 страница 13
  • ГОСТ 34464.5-2023, страница 14 страница 14
  • ГОСТ 34464.5-2023, страница 15 страница 15
  • ГОСТ 34464.5-2023, страница 16 страница 16