ГОСТ 33477-2015 Система разработки и постановки продукции на производство. Технические средства железнодорожной инфраструктуры. Порядок разработки, постановки на производство и допуска к применению

Категории ГОСТ 33477-2015 по ОКС:
Статус документа:
действует, введён в действие 01.07.2016
Название на английском языке:
System of development and launching into manufacture. Railway infrastructure equipment. Procedure of development, launching into manufacture and tolerance for use
Дата актуализации информации по стандарту:
23.10.2025, в 10:49 (менее 3 месяцев назад)
Вид стандарта:
Основополагающие стандарты
Дата начала действия ГОСТа:
2016-07-01
Дата последнего издания документа:
2016-02-08
Число страниц:
50
Назначение ГОСТ 33477-2015:
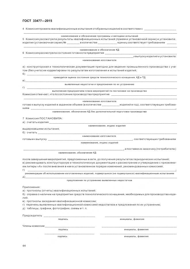
Настоящий стандарт устанавливает порядок разработки, постановки на производство и допуска к применению новых (модернизированных) технических средств инфраструктуры железнодорожного транспорта. Стандарт также устанавливает порядок адаптации и допуска к применению на железнодорожном транспорте технических средств инфраструктуры, произведенных в других государствах
Документ принят орг-ей:
Межгосударственный Совет по стандартизации метрологии и сертификации, протокол №79-П
Ключевые слова документа:
изготовление, испытания, конструкторская документация, опытные образцы, освоение производства, подготовка производства, подконтрольная эксплуатация, предварительные, приемочные и испытания, продукция для железнодорожного транспорта, производство, техническое задание, технологическая документация, установочная серия

Скачать ГОСТ 33477-2015 вы можете в следующих версиях:

Тип файла:
Дата добавления:
Загрузок:
Размер:
Тип файла:
PDF с изображениями
Добавлен:
20/11/2025 15:37
Скачиваний:
36
Размер файла:
4.14 Мб
  • ГОСТ 33477-2015, страница 1 страница 1
  • ГОСТ 33477-2015, страница 2 страница 2
  • ГОСТ 33477-2015, страница 3 страница 3
  • ГОСТ 33477-2015, страница 4 страница 4
  • ГОСТ 33477-2015, страница 5 страница 5
  • ГОСТ 33477-2015, страница 6 страница 6
  • ГОСТ 33477-2015, страница 7 страница 7
  • ГОСТ 33477-2015, страница 8 страница 8
  • ГОСТ 33477-2015, страница 9 страница 9
  • ГОСТ 33477-2015, страница 10 страница 10
  • ГОСТ 33477-2015, страница 11 страница 11
  • ГОСТ 33477-2015, страница 12 страница 12
  • ГОСТ 33477-2015, страница 13 страница 13
  • ГОСТ 33477-2015, страница 14 страница 14
  • ГОСТ 33477-2015, страница 15 страница 15
  • ГОСТ 33477-2015, страница 16 страница 16
  • ГОСТ 33477-2015, страница 17 страница 17
  • ГОСТ 33477-2015, страница 18 страница 18
  • ГОСТ 33477-2015, страница 19 страница 19
  • ГОСТ 33477-2015, страница 20 страница 20
  • ГОСТ 33477-2015, страница 21 страница 21
  • ГОСТ 33477-2015, страница 22 страница 22
  • ГОСТ 33477-2015, страница 23 страница 23
  • ГОСТ 33477-2015, страница 24 страница 24
  • ГОСТ 33477-2015, страница 25 страница 25
  • ГОСТ 33477-2015, страница 26 страница 26
  • ГОСТ 33477-2015, страница 27 страница 27
  • ГОСТ 33477-2015, страница 28 страница 28
  • ГОСТ 33477-2015, страница 29 страница 29
  • ГОСТ 33477-2015, страница 30 страница 30
  • ГОСТ 33477-2015, страница 31 страница 31
  • ГОСТ 33477-2015, страница 32 страница 32
  • ГОСТ 33477-2015, страница 33 страница 33
  • ГОСТ 33477-2015, страница 34 страница 34
  • ГОСТ 33477-2015, страница 35 страница 35
  • ГОСТ 33477-2015, страница 36 страница 36
  • ГОСТ 33477-2015, страница 37 страница 37
  • ГОСТ 33477-2015, страница 38 страница 38
  • ГОСТ 33477-2015, страница 39 страница 39
  • ГОСТ 33477-2015, страница 40 страница 40
  • ГОСТ 33477-2015, страница 41 страница 41
  • ГОСТ 33477-2015, страница 42 страница 42
  • ГОСТ 33477-2015, страница 43 страница 43
  • ГОСТ 33477-2015, страница 44 страница 44
  • ГОСТ 33477-2015, страница 45 страница 45
  • ГОСТ 33477-2015, страница 46 страница 46
  • ГОСТ 33477-2015, страница 47 страница 47
  • ГОСТ 33477-2015, страница 48 страница 48
  • ГОСТ 33477-2015, страница 49 страница 49
  • ГОСТ 33477-2015, страница 50 страница 50