ГОСТ 28042-2013 Плиты покрытий железобетонные для зданий и сооружений. Технические условия

Категории ГОСТ 28042-2013 по ОКС:
Статус документа:
действует, введён в действие 01.01.2015
Название на английском языке:
Reinforced concrete roofings slabs for industrial buildings. Specifications
Дата актуализации информации по стандарту:
21.10.2025, в 13:24 (менее 3 месяцев назад)
Вид стандарта:
Основополагающие стандарты
Дата начала действия ГОСТа:
2015-01-01
Дата последнего издания документа:
2014-09-01
Коды документа ГОСТ 28042-2013:
Код КГС:
Ж33
Код ОКСТУ:
5841
Число страниц:
33
Назначение ГОСТ 28042-2013:
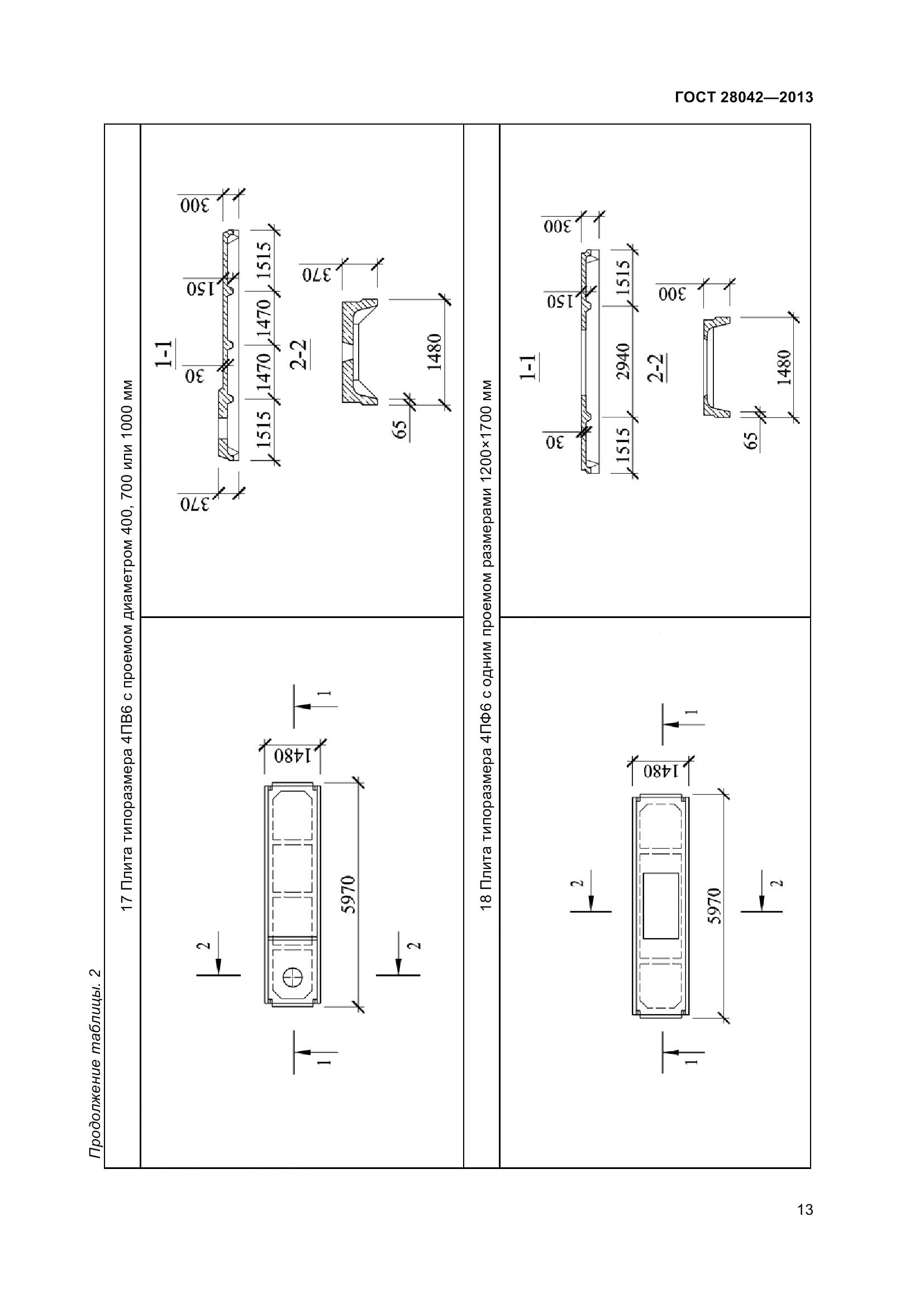
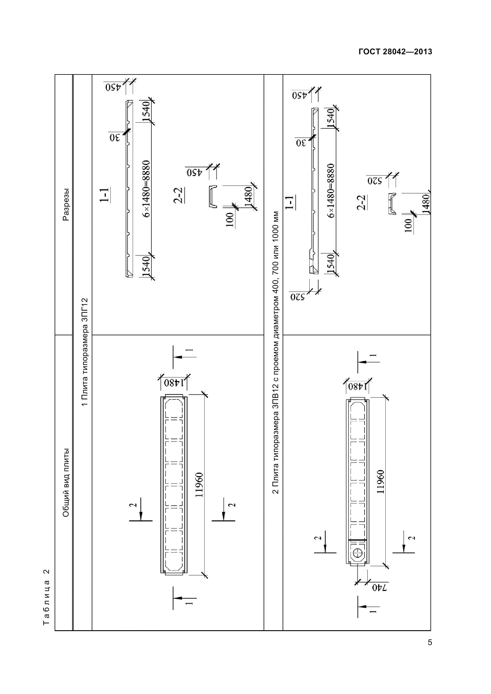
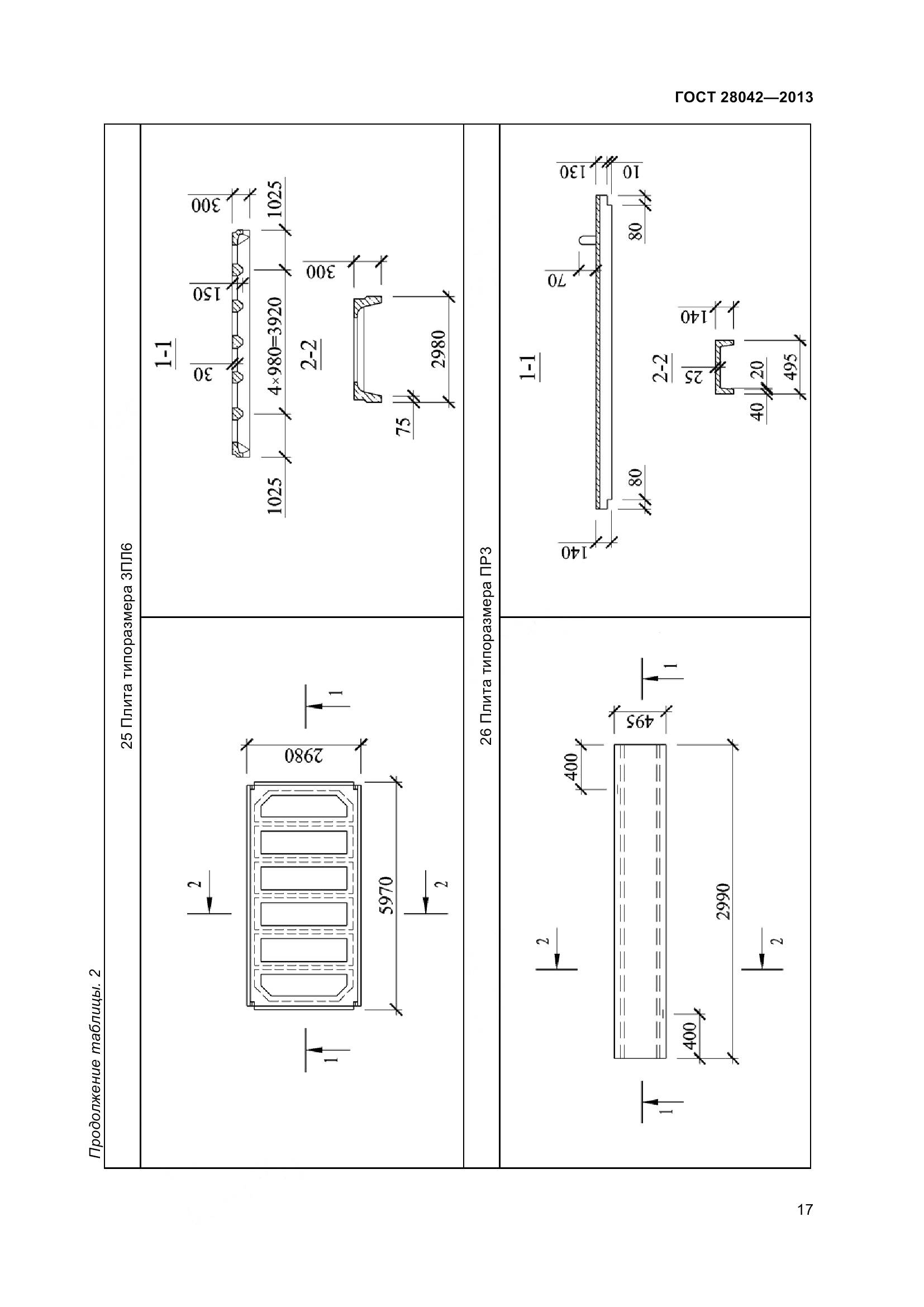
Настоящий стандарт устанавливает технические требования, методы контроля и правила приемки, транспортирования и хранения железобетонных ребристых и плоских плит из тяжелого или конструкционного легкого бетона. Плиты применяют в покрытиях зданий предприятий всех отраслей промышленности и народного хозяйства, за исключением жилых и общественных зданий
Документ разработан орг-ей:
Федеральное агентство по техническому регулированию и метрологии (Росстандарт)
Документ принят орг-ей:
Межгосударственный Совет по стандартизации метрологии и сертификации, протокол №44-2013
Ключевые слова документа:
маркировка, методы контроля, покрытие, правила безопасного выполнения работ, ребристая плита, технические условия, транспортирование и хранение

Скачать ГОСТ 28042-2013 вы можете в следующих версиях:

Тип файла:
Дата добавления:
Загрузок:
Размер:
Тип файла:
PDF с изображениями
Добавлен:
21/11/2025 10:10
Скачиваний:
33
Размер файла:
7.2 Мб
  • ГОСТ 28042-2013, страница 1 страница 1
  • ГОСТ 28042-2013, страница 2 страница 2
  • ГОСТ 28042-2013, страница 3 страница 3
  • ГОСТ 28042-2013, страница 4 страница 4
  • ГОСТ 28042-2013, страница 5 страница 5
  • ГОСТ 28042-2013, страница 6 страница 6
  • ГОСТ 28042-2013, страница 7 страница 7
  • ГОСТ 28042-2013, страница 8 страница 8
  • ГОСТ 28042-2013, страница 9 страница 9
  • ГОСТ 28042-2013, страница 10 страница 10
  • ГОСТ 28042-2013, страница 11 страница 11
  • ГОСТ 28042-2013, страница 12 страница 12
  • ГОСТ 28042-2013, страница 13 страница 13
  • ГОСТ 28042-2013, страница 14 страница 14
  • ГОСТ 28042-2013, страница 15 страница 15
  • ГОСТ 28042-2013, страница 16 страница 16
  • ГОСТ 28042-2013, страница 17 страница 17
  • ГОСТ 28042-2013, страница 18 страница 18
  • ГОСТ 28042-2013, страница 19 страница 19
  • ГОСТ 28042-2013, страница 20 страница 20
  • ГОСТ 28042-2013, страница 21 страница 21
  • ГОСТ 28042-2013, страница 22 страница 22
  • ГОСТ 28042-2013, страница 23 страница 23
  • ГОСТ 28042-2013, страница 24 страница 24
  • ГОСТ 28042-2013, страница 25 страница 25
  • ГОСТ 28042-2013, страница 26 страница 26
  • ГОСТ 28042-2013, страница 27 страница 27
  • ГОСТ 28042-2013, страница 28 страница 28
  • ГОСТ 28042-2013, страница 29 страница 29
  • ГОСТ 28042-2013, страница 30 страница 30
  • ГОСТ 28042-2013, страница 31 страница 31
  • ГОСТ 28042-2013, страница 32 страница 32
  • ГОСТ 28042-2013, страница 33 страница 33