ГОСТ 21.704-2011 Система проектной документации для строительства. Правила выполнения рабочей документации наружных сетей водоснабжения и канализации

Категории ГОСТ 21.704-2011 по ОКС:
Статус документа:
действует, введён в действие 01.05.2013
Название на английском языке:
System of design documents for construction. Rules for execution of working documentation of outside networks of water supply and sewerage
Дата актуализации информации по стандарту:
22.01.2026, в 19:57 (менее месяца назад)
Вид стандарта:
Основополагающие стандарты
Дата начала действия ГОСТа:
2013-05-01
Дата последнего издания документа:
2020-08-26
Коды документа ГОСТ 21.704-2011:
Код КГС:
Ж01
Число страниц:
21
Назначение ГОСТ 21.704-2011:
Настоящий стандарт устанавливает состав и правила выполнения рабочей документации наружных сетей водоснабжения и канализации объектов строительства различного назначения
Документ принят орг-ей:
Межгосударственный Совет по стандартизации метрологии и сертификации, протокол №39
Ключевые слова документа:
изделий и материалов, наружные сети водоснабжения и канализации, план сетей, продольный профиль, рабочая документация, состав и правила оформления, спецификация оборудования

Скачать ГОСТ 21.704-2011 вы можете в следующих версиях:

Тип файла:
Дата добавления:
Загрузок:
Размер:
Тип файла:
PDF с изображениями
Добавлен:
23/01/2016 18:32
Скачиваний:
32
Размер файла:
0.6 Мб

Поправки и изменения к ГОСТ 21.704-2011:

  • Наименование, вид:
    Дата
    регистрации:
    начала действия:
  • Изменение к ГОСТ 21.704-2011. Поправка к изменению

    Тип изменения: Поправка к изменению
    Номер изменения:
    Регистрационный номер: -

    2025-10-13
    2025-10-13
  • Изменение №1 к ГОСТ 21.704-2011

    Тип изменения: Текстовое изменение; Изменены ссылочные НД
    Номер изменения: 1
    Регистрационный номер: 1801-ст
    Новое значение: Заменяется: ГОСТ Р 21.1101-2009 на ГОСТ Р 21.1101-2013,ГОСТ 21.110-95 на ГОСТ 21.110-2013,ГОСТ 21.114-95 на ГОСТ 21.114-2013,ГОСТ 21.206-93 на ГОСТ 21.206-2012,ГОСТ 21.302-96 на ГОСТ 21.302-2013 Вводится: ГОСТ 21.204-93 Отменяется: ГОСТ 10704-91

    2016-11-25
    2017-07-01
  • ГОСТ 21.704-2011, страница 1 страница 1
  • ГОСТ 21.704-2011, страница 2 страница 2
  • ГОСТ 21.704-2011, страница 3 страница 3
  • ГОСТ 21.704-2011, страница 4 страница 4
  • ГОСТ 21.704-2011, страница 5 страница 5
  • ГОСТ 21.704-2011, страница 6 страница 6
  • ГОСТ 21.704-2011, страница 7 страница 7
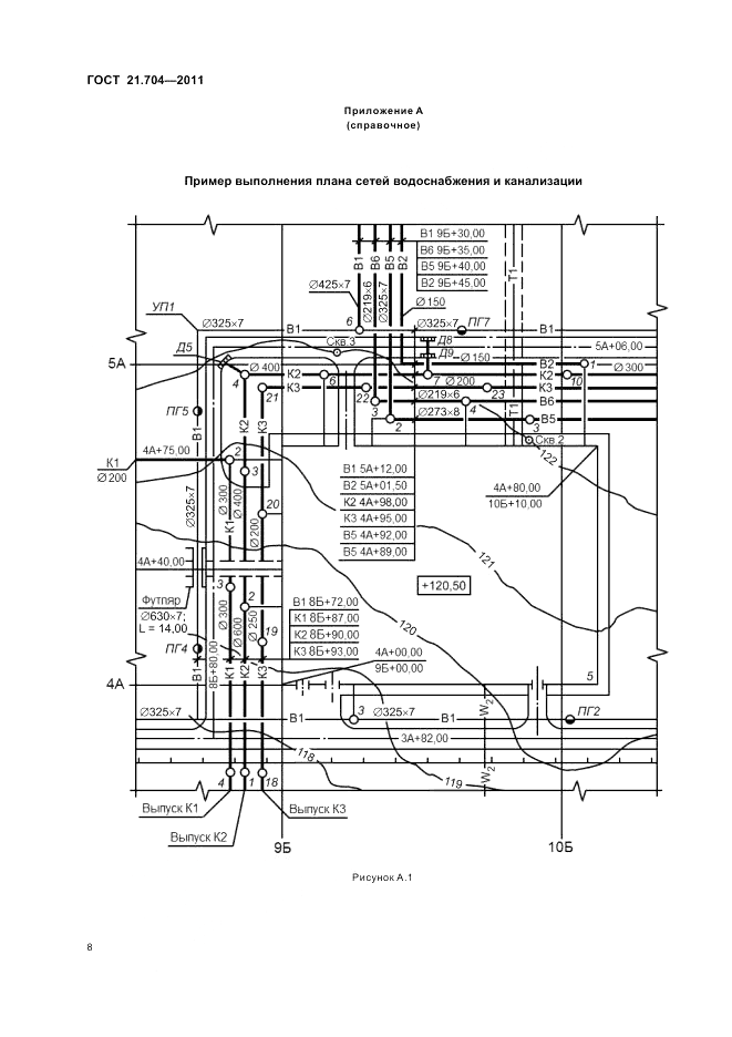
  • ГОСТ 21.704-2011, страница 8 страница 8
  • ГОСТ 21.704-2011, страница 9 страница 9
  • ГОСТ 21.704-2011, страница 10 страница 10
  • ГОСТ 21.704-2011, страница 11 страница 11
  • ГОСТ 21.704-2011, страница 12 страница 12
  • ГОСТ 21.704-2011, страница 13 страница 13
  • ГОСТ 21.704-2011, страница 14 страница 14
  • ГОСТ 21.704-2011, страница 15 страница 15
  • ГОСТ 21.704-2011, страница 16 страница 16