ГОСТ 20166-74
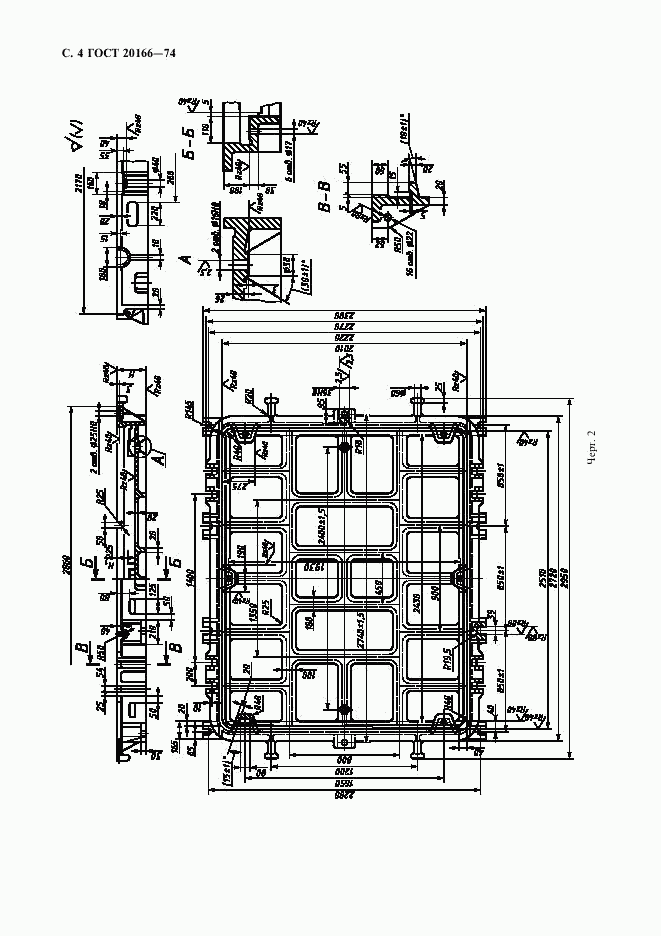
ГОСТ 20166-74 Плиты модельные со сменными деревянными вкладышами для опоки размерами в свету 2500х2000 мм на формовочные литейные машины с поворотом полуформы без допрессовки. Конструкция и размеры
Категории ГОСТ 20166-74 по ОКС:- Статус документа:
- действует, введён в действие 01.07.1975
- Название на английском языке:
- Pattern plates with changeable wooden inserts for moulding box having inside dimensions 2500x2000 mm for moulding foundry machines with turn of half mould without squeezing. Design and dimensions
- Дата актуализации информации по стандарту:
- 12.09.2019, в 19:15 (более года назад)
- Вид стандарта:
- Стандарты на продукцию (услуги)
- Дата начала действия ГОСТа:
- 1975-07-01
- Дата последнего издания документа:
- 2000-11-01
Коды документа ГОСТ 20166-74:
- Код КГС:
- Г21
- Код ОКСТУ:
- 3969
- Число страниц:
- 7
- Назначение ГОСТ 20166-74:
- Настоящий стандарт устанавливает конструкцию и размеры модельных плит
- ГРНТИ индекс(ы):
- 553137
- Документ разработан орг-ей:
- Минстанкопром СССР
Нормативные ссылки, связанные с ГОСТ 20166-74:
- Стандарт ссылается на ГОСТы:
- ГОСТ 5927-70, ГОСТ 6402-70, ГОСТ 7808-70, ГОСТ 19391-74, ГОСТ 20122-74, ГОСТ 20123-74, ГОСТ 20128-74, ГОСТ 20131-80, ГОСТ 20170-74, ГОСТ 20172-74, ГОСТ 977-88
- На стандарт ссылаются:
- ГОСТ 21028-75
Скачать ГОСТ 20166-74 вы можете в следующих версиях:
Тип файла:
Дата добавления:
Загрузок:
Размер:
Ссылка на скачивание:
Добавлен:
12/12/2011 02:00
Скачиваний:
114
Размер файла:
0.33 Мб
Ссылка для скачивания:
Добавлен:
12/12/2011 02:00
Скачиваний:
120
Размер файла:
0.33 Мб
Ссылка для скачивания:
Добавлен:
12/12/2011 01:57
Скачиваний:
142
Размер файла:
0.16 Мб
Ссылка для скачивания:
Поправки и изменения к ГОСТ 20166-74:
-
Наименование, вид:Датарегистрации:начала действия:Ссылка:
-
Изменение №1 к ГОСТ 20166-74
Тип изменения: Текстовое изменение
Номер изменения: 1
Регистрационный номер: 513
Новое значение: -
1982-02-091982-05-01 -
Изменение №2 к ГОСТ 20166-74
Тип изменения: Текстовое изменение
Номер изменения: 2
Регистрационный номер: 4622
Новое значение: -
1987-12-171988-06-01
-
страница 1
-
страница 2
-
страница 3
-
страница 4
-
страница 5
-
страница 6
-
страница 7