ГОСТ ISO 12217-3-2016 Суда малые. Оценка остойчивости и запаса плавучести и определение проектной категории. Часть 3. Суда с длиной корпуса менее 6 м

Категории ГОСТ ISO 12217-3-2016 по ОКС:
Статус документа:
действует, введён в действие 01.11.2017
Название на английском языке:
Small craft-Stability and buoyancy assessment and categorization -Part 3: Boats of hull length less than 6 m
Дата актуализации информации по стандарту:
30.10.2025, в 10:11 (менее 3 месяцев назад)
Вид стандарта:
Стандарты на методы контроля
Дата начала действия ГОСТа:
2017-11-01
Дата последнего издания документа:
2017-08-02
Число страниц:
74
Назначение ГОСТ ISO 12217-3-2016:
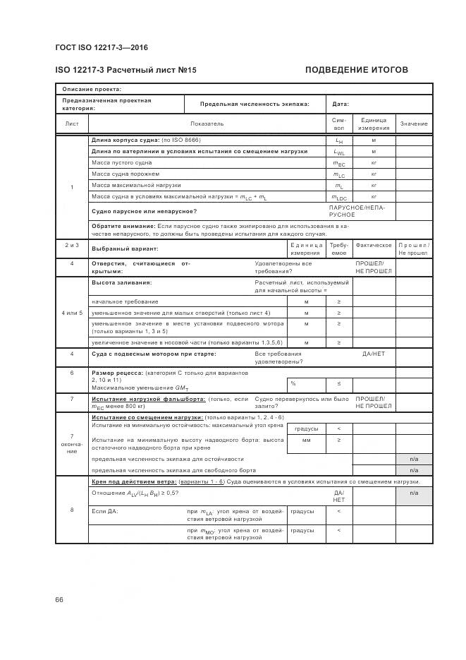
Настоящая часть стандарта ИСО 12217 устанавливает методы оценки остойчивости и плавучести целых (т. е. неповрежденных) судов. Также рассматриваются характеристики плавучести судов, с риском заливания водой. Оценка остойчивости и запаса плавучести согласно настоящей части стандарта, дает возможность присвоить судну проектную категорию (C или D), соответствующую его конструкции и максимальной нагрузке. Настоящая часть стандарта ИСО 12217 применима к гребным и моторным судам с длиной корпуса менее 6 м, за исключением обитаемых многокорпусных судов. К палубным судам с быстроосушаемыми рецессами в соответствии с ISO 11812 с длиной корпуса менее 6 м, могут также применяться стандарты ISO 12217-1 или ISO 12217-2 (для не парусных и парусных судов, соответственно), в этом случае может быть назначена более высокая проектная категория. Для обитаемых многокорпусных судов в настоящем стандарте приводятся оценка вероятности опрокидывания судна, определение эффективного способа эвакуации и требования к положительной плавучести при опрокидывании судна. Требования настоящей части стандарта ИСО 12217 не распространяются на: - надувные и каркасно-надувные суда (РИБ), рассматриваемые в ISO 6185, кроме ссылок, сделанных в ISO 6185 на специальные положения ИСО 12217; - персональные суда, рассматриваемые в ISO 13590 и прочий, сходный по управлению водный транспорт; - водные игрушки; - каноэ и каяки; - гондолы и водные велосипеды; - парусные доски для виндсерфинга; - доски для серфинга, в том числе укомплектованные механическим двигателем; - суда на подводных крыльях и на воздушной подушке в случае, когда они не находятся в водоизмещающем режиме; - подводные аппараты
Документ принят орг-ей:
Межгосударственный Совет по стандартизации метрологии и сертификации, протокол №93-П
Ключевые слова документа:
оценка остойчивости и запаса плавучести, суда малые

Скачать ГОСТ ISO 12217-3-2016 вы можете в следующих версиях:

Тип файла:
Дата добавления:
Загрузок:
Размер:
Тип файла:
PDF с изображениями
Добавлен:
20/11/2025 14:33
Скачиваний:
21
Размер файла:
5.89 Мб
  • ГОСТ ISO 12217-3-2016, страница 1 страница 1
  • ГОСТ ISO 12217-3-2016, страница 2 страница 2
  • ГОСТ ISO 12217-3-2016, страница 3 страница 3
  • ГОСТ ISO 12217-3-2016, страница 4 страница 4
  • ГОСТ ISO 12217-3-2016, страница 5 страница 5
  • ГОСТ ISO 12217-3-2016, страница 6 страница 6
  • ГОСТ ISO 12217-3-2016, страница 7 страница 7
  • ГОСТ ISO 12217-3-2016, страница 8 страница 8
  • ГОСТ ISO 12217-3-2016, страница 9 страница 9
  • ГОСТ ISO 12217-3-2016, страница 10 страница 10
  • ГОСТ ISO 12217-3-2016, страница 11 страница 11
  • ГОСТ ISO 12217-3-2016, страница 12 страница 12
  • ГОСТ ISO 12217-3-2016, страница 13 страница 13
  • ГОСТ ISO 12217-3-2016, страница 14 страница 14
  • ГОСТ ISO 12217-3-2016, страница 15 страница 15
  • ГОСТ ISO 12217-3-2016, страница 16 страница 16
  • ГОСТ ISO 12217-3-2016, страница 17 страница 17
  • ГОСТ ISO 12217-3-2016, страница 18 страница 18
  • ГОСТ ISO 12217-3-2016, страница 19 страница 19
  • ГОСТ ISO 12217-3-2016, страница 20 страница 20
  • ГОСТ ISO 12217-3-2016, страница 21 страница 21
  • ГОСТ ISO 12217-3-2016, страница 22 страница 22
  • ГОСТ ISO 12217-3-2016, страница 23 страница 23
  • ГОСТ ISO 12217-3-2016, страница 24 страница 24
  • ГОСТ ISO 12217-3-2016, страница 25 страница 25
  • ГОСТ ISO 12217-3-2016, страница 26 страница 26
  • ГОСТ ISO 12217-3-2016, страница 27 страница 27
  • ГОСТ ISO 12217-3-2016, страница 28 страница 28
  • ГОСТ ISO 12217-3-2016, страница 29 страница 29
  • ГОСТ ISO 12217-3-2016, страница 30 страница 30
  • ГОСТ ISO 12217-3-2016, страница 31 страница 31
  • ГОСТ ISO 12217-3-2016, страница 32 страница 32
  • ГОСТ ISO 12217-3-2016, страница 33 страница 33
  • ГОСТ ISO 12217-3-2016, страница 34 страница 34
  • ГОСТ ISO 12217-3-2016, страница 35 страница 35
  • ГОСТ ISO 12217-3-2016, страница 36 страница 36
  • ГОСТ ISO 12217-3-2016, страница 37 страница 37
  • ГОСТ ISO 12217-3-2016, страница 38 страница 38
  • ГОСТ ISO 12217-3-2016, страница 39 страница 39
  • ГОСТ ISO 12217-3-2016, страница 40 страница 40
  • ГОСТ ISO 12217-3-2016, страница 41 страница 41
  • ГОСТ ISO 12217-3-2016, страница 42 страница 42
  • ГОСТ ISO 12217-3-2016, страница 43 страница 43
  • ГОСТ ISO 12217-3-2016, страница 44 страница 44
  • ГОСТ ISO 12217-3-2016, страница 45 страница 45
  • ГОСТ ISO 12217-3-2016, страница 46 страница 46
  • ГОСТ ISO 12217-3-2016, страница 47 страница 47
  • ГОСТ ISO 12217-3-2016, страница 48 страница 48
  • ГОСТ ISO 12217-3-2016, страница 49 страница 49
  • ГОСТ ISO 12217-3-2016, страница 50 страница 50
  • ГОСТ ISO 12217-3-2016, страница 51 страница 51
  • ГОСТ ISO 12217-3-2016, страница 52 страница 52
  • ГОСТ ISO 12217-3-2016, страница 53 страница 53
  • ГОСТ ISO 12217-3-2016, страница 54 страница 54
  • ГОСТ ISO 12217-3-2016, страница 55 страница 55
  • ГОСТ ISO 12217-3-2016, страница 56 страница 56
  • ГОСТ ISO 12217-3-2016, страница 57 страница 57
  • ГОСТ ISO 12217-3-2016, страница 58 страница 58
  • ГОСТ ISO 12217-3-2016, страница 59 страница 59
  • ГОСТ ISO 12217-3-2016, страница 60 страница 60
  • ГОСТ ISO 12217-3-2016, страница 61 страница 61
  • ГОСТ ISO 12217-3-2016, страница 62 страница 62
  • ГОСТ ISO 12217-3-2016, страница 63 страница 63
  • ГОСТ ISO 12217-3-2016, страница 64 страница 64
  • ГОСТ ISO 12217-3-2016, страница 65 страница 65
  • ГОСТ ISO 12217-3-2016, страница 66 страница 66
  • ГОСТ ISO 12217-3-2016, страница 67 страница 67
  • ГОСТ ISO 12217-3-2016, страница 68 страница 68
  • ГОСТ ISO 12217-3-2016, страница 69 страница 69
  • ГОСТ ISO 12217-3-2016, страница 70 страница 70
  • ГОСТ ISO 12217-3-2016, страница 71 страница 71
  • ГОСТ ISO 12217-3-2016, страница 72 страница 72
  • ГОСТ ISO 12217-3-2016, страница 73 страница 73
  • ГОСТ ISO 12217-3-2016, страница 74 страница 74